Factibilidad de la electrificación

Santos DLNG, Darwin, Northern Territory
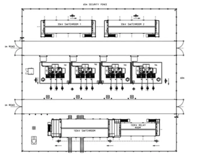
Electricity network, substations, solar and BESS
2021
Descripción del proyecto
Santos está considerando la electrificación de los procesos dentro de Darwin LNG a medida que se traslada a los campos de gas de Barossa. Se pidió a Incite Energy que proporcionara un estudio de viabilidad para el suministro de electricidad renovable a través de la valla.
Key Achievements
Incite Energy provided optimised renewable energy solutions for a range of scenarios, all of which included the needed network infrastructure to connect DLNG to the Darwin-Katherine Power System and renewable energy providers. Reliable electricity supply solutions included consideration for existing and new gas-fired generation, solar power and Battery Energy Storage System (BESS). Network solutions were designed to manage uninterrupted electricity supply during a staged investment program, and the anticipated addition of neighbouring loads. Scenario analysis was used to consider different gas prices, carbon emission prices and renewable energy certificate values.
Modelling was undertaken using Helioscope to determine solar generation output over a 25-year investment horizon, with HOMER Pro used to determine the Lowest Cost of Electricity (LCOE).

